- トップページ
- 新築一戸建てをエリアから探す
- 佐倉市
- 西志津
- 2-C号棟 佐倉市西志津2丁目2期~新築分譲住宅 全4棟






◆好立地の分譲地♪
京成本線&東葉高速線の2路線利用可。勝田台駅、東葉勝田台駅まで徒歩約9分の駅近分譲地♪
近隣商業施設も充実。スーパー、コンビニ、ドラッグストアなどお買物施設あり♪
◎さくら幼稚園・・・・約 270m(徒歩約 4分)
◎志津保育園・・・・・約1000m(徒歩約13分)
◎西志津小学校・・・・約1500m(徒歩約19分)
◎西志津中学校・・・・約1100m(徒歩約14分)
◎ウエルシア・・・・・約 240m(徒歩約 3分)
◎ランドローム・・・・約 250m(徒歩約 4分)
◎セブンイレブン・・・約 550m(徒歩約 7分)
◎勝田台第7公園 ・・・約 290m(徒歩約 4分)
◇収納豊富な間取り♪
各居室収納はもちろん、ウォークインクローゼットもあります。
その他、パントリーまたは納戸など収納豊富な間取りになっております。
◆安心の住宅性能評価書取得物件♪
国が定めた住宅性能評価制度において、評価書取得♪
地震保険の優遇を受けることができます。
☆広々とした空間でゆったりおくつろぎいただけるように☆
◎キッズルーム、ベビーベッド設置!(お子様とご一緒でもご安心!)
◎当社専用駐車場有り♪(すぐ隣に御座います!ご自由にお停めください!)
すべての画像
■駅まで徒歩9分!好立地の分譲地!暮らしの質を高める住空間ZEH水準の省エネ住宅
■近隣商業施設充実!高耐久・高性能、耐震等級3のIDS工法で安心の家!
■公道前面道路 駅近くの住宅街、スーパー、コンビニ、ドラッグストアなどお買物施設も近くて便利な分譲地。
~同仕様~ ■リビングを見回せる動線となっており、料理中でも安心してお子様のご様子をご確認いただけます
~同仕様~ ■引き出して使える便利なシャワーヘッドは浄水カートリッジが内蔵でクリーンなお水が使えます。
~同仕様~ ■収納力ある三面鏡と使いやすいシャワー水栓を備えた洗面台。生活感を隠しつつ清潔感を保てます
~同仕様~ ■浴槽は環境にやさしい節水タイプ!浴槽内ステップで半身浴や親子入浴も楽しめます
~同仕様~ ■ぺーパーホルダーや温水洗浄便座を完備した1階トイレ。シ ンプルながら使いやすい設備です
☆第1期完売!第二期分譲、いよいよ販売スタート!
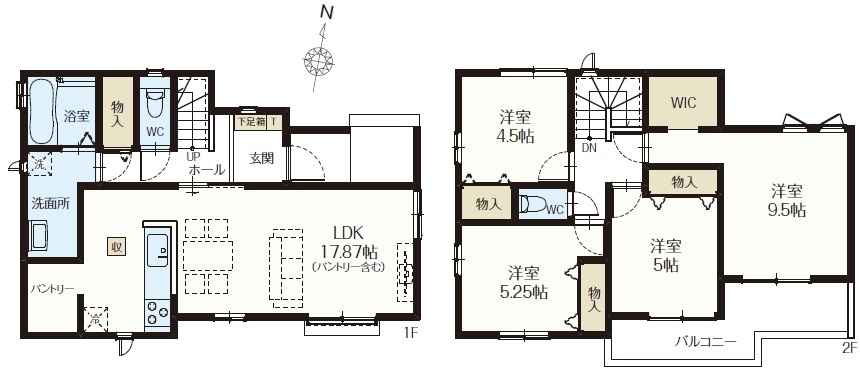
■LDK約17.87帖で広々家族団らん♪対面システムキッチン&パントリースペースで収納充実♪
モニター付きインターフォン
■シンプルで使いやすいインターホン。録画機能付きで、自動録画のほか、手動録画もできます。
給湯器リモコン
■熱効がよい省エネ・省資源性を追求した給湯器 エネルギーの有効利用で省エネ性能アップ
システムキッチン
■スライド収納付きシステムキッチンは掃除がしやすく収納力豊富でお気に入りの食器もたくさん入れられます。
シャンプードレッサー
■収納力ある三面鏡と使いやすいシャワー水栓を備えた洗面台。生活感を隠しつつ清潔感を保てます
温水洗浄便座
■毎日使う場所だからこそ、快適さにこだわりたい。温水洗浄便座付きで、寒い季節もヒヤッとせず、清潔で心地よいトイレ空間を実現します。
ウォークインクローゼット
■普通のクローゼットよりも大きい大容量のウォークインクローゼットは家族の衣類などがまとめて管理できてスッキリ生活がはかどります
担当スタッフより

- 清宮 一敏
- ☆西志津2丁目第2期4棟分譲いよいよ販売スタート!!安心の品質と優れた住宅性能を備えた住宅!快適な暮らしをご案内いたします。購入費用やローンの支払いに対する相談も承ります!お気軽にお問合せください。
各棟情報
物件詳細情報
物件No.20000436758-003
| 所在地 | 千葉県佐倉市西志津2丁目 | ||
|---|---|---|---|
| 交通 | 京成本線「勝田台」駅徒歩9分 東葉高速鉄道「東葉勝田台」駅徒歩9分 京成本線「志津」駅徒歩18分 |
||
| 間取 | 4LDK + LDKパントリー含む (LDK17.87帖、洋室4.5帖、洋室5.25帖、洋室5帖、洋室9.5帖) | ||
| 土地面積 | 110.09m² | ||
| 建物面積 | 98.74m² | ||
| 販売戸数 | 4戸 | 総戸数 | 全4戸 |
| 構造・規模 | 木造 2階建て | 築年・入居 | 2026年4月上旬 |
| バルコニー | 南向き | 建物現況 | 建築中 |
| 建築確認番号 | 第HPA-25-14127-1号 | 駐車スペース | あり(カースペース) |
| 引渡時期 | 期日指定有(2026年4月下旬) | 地目 | 宅地 |
| 用途地域 | 第一種低層住居専用地域 | 建ぺい率 | 60% |
| 容積率 | 150% | 都市計画 | 市街化区域 |
| 権利種類 | 所有権 | 接道 | 北側5M私道に接道 |
| 小学校区 | 西志津小学校(1500m) | 中学校区 | 西志津中学校(1100m) |
| 取引態様 | 媒介 | ||
| 設備 | 公営水道、本下水、都市ガス | ||
| 省エネ性能表示 | エネルギー消費性能:★★★ 断熱性能:5段階 |
||
こだわり項目
- ※価格は物件の代金総額を表示しており、消費税が課税される場合は税込み価格です。(1,000円未満は切り上げ。)
税率は引き渡し時期により異なりますので、各物件の詳細につきましてはお問い合わせください。 - ※敷地権利が借地権のものは価格に権利金を含みます。
- ※制作中に内容が変更される場合もありますので、あらかじめご了承ください。
- ※購入の前には物件内容や契約条件についてご自身で十分な確認をしていただくようにお願いいたします。
- ※完成予想図はいずれも外構、植栽、外観等実際のものとは多少異なることがあります。
- ※CG合成の画像の場合、実際とは多少異なる場合があります。
周辺地図
- 現地販売会
- 公開中 10:00〜17:00 事前に必ず予約してください
周辺施設一覧
- ショッピングセンター
- スーパー
- コンビニ
- ドラッグストア
- ホームセンター
- 飲食店
- その他店舗
- 商店街
- 大学
- 専門学校
- 高校・高専
- 中学校
- 小学校
- 保育園
- 幼稚園
- 公民館・児童館
- 病院
- 郵便局
- 役所
- 図書館
- 金融機関
- 警察・消防
- 趣味・娯楽施設
- 公園・運動施設
- 周辺の街並み
- 駅
- その他
お問い合せ先
- 株式会社永和住宅 本店
- お電話でのお問い合わせは
043-460-3355「ホームページを見た」とお問い合わせください - 千葉県佐倉市西志津4-7-11
- 営業時間:AM9:30~PM7:00
- 定休日:第2・第3火曜日・毎週水曜日
- 免許番号:千葉県知事免許(4)第15117号
- トップページ
- 新築一戸建てをエリアから探す
- 佐倉市
- 西志津
- 2-C号棟 佐倉市西志津2丁目2期~新築分譲住宅 全4棟























