- トップページ
- 中古住宅をエリアから探す
- 佐倉市
- 中志津
- 佐倉市中志津5丁目の中古住宅






====おすすめポイント====
【平成29年築の築浅戸建】
築10年未満。室内、きれいにお使いです。
全居室南向きで陽当たり良し!区画が整っていて風通し良し!
シューズインクロークやウォークインクローゼットのある収納豊富な間取り。
☆広々とした空間でゆったりおくつろぎいただけるように☆
◎キッズルーム、ベビーベッド設置!(お子様とご一緒でもご安心!)
◎当社専用駐車場有り♪(すぐ隣に御座います!ご自由にお停めください!)
【平成29年築の築浅戸建】
築10年未満。室内、きれいにお使いです。
全居室南向きで陽当たり良し!区画が整っていて風通し良し!
シューズインクロークやウォークインクローゼットのある収納豊富な間取り。
☆広々とした空間でゆったりおくつろぎいただけるように☆
◎キッズルーム、ベビーベッド設置!(お子様とご一緒でもご安心!)
◎当社専用駐車場有り♪(すぐ隣に御座います!ご自由にお停めください!)
担当スタッフより

- 水上 翼
- 平成29年築の築浅物件♪公園、教育施設、コンビニ、スーパーが徒歩約10分圏内に…♪区画の整った住宅街です。お気軽にお問い合わせください。
物件詳細情報
物件No.20000439775
| 所在地 | 千葉県佐倉市中志津5丁目 | ||
|---|---|---|---|
| 交通 | 京成本線「志津」駅徒歩21分 京成本線「ユーカリが丘」駅徒歩24分 ユーカリが丘線「ユーカリが丘」駅徒歩24分 |
||
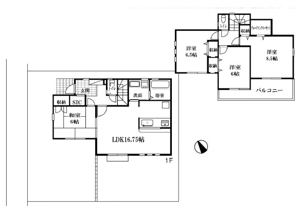
| 間取 | 4LDK + SIC+WIC+ウッドデッキ (LDK16.75帖、和室6帖、洋室8.5帖、洋室6帖、洋室6.5帖) | ||
| 土地面積 | 141.75m² 公簿 | ||
| 建物面積 | 102.68m² 公簿 | ||
| 構造・規模 | 木造 2階建て | 築年月 | 2017年4月築 |
| バルコニー | 南西向き | 施工会社 | タクトホーム株式会社 |
| 地目 | 宅地 | 用途地域 | 第一種低層住居専用地域 |
| 建ぺい率 | 50% | 容積率 | 100% |
| 都市計画 | 市街化区域 | 駐車スペース | 2台(カースペース:並列) |
| 現況 | 居住中 | 引渡時期 | 相談 |
| 引渡条件 | 現況渡し | 権利種類 | 所有権 |
| 接道 | 北西側8M公道に10.9M接道 | 取引態様 | 専属専任媒介 |
| 設備 | 公営水道、本下水、都市ガス | ||
こだわり項目
整形地平坦地LDK15帖以上全室南向き庭床下収納全居室収納ガスコンロシステムキッチントイレ2ヶ所浴室に窓ウォークインクローゼットシューズインクローゼット陽当り良好通風良好保育園・幼稚園800m以内小学校800m以内公園800m以内
- ※価格は物件の代金総額を表示しており、消費税が課税される場合は税込み価格です。(1,000円未満は切り上げ。)
税率は引き渡し時期により異なりますので、各物件の詳細につきましてはお問い合わせください。 - ※敷地権利が借地権のものは価格に権利金を含みます。
- ※制作中に内容が変更される場合もありますので、あらかじめご了承ください。
- ※購入の前には物件内容や契約条件についてご自身で十分な確認をしていただくようにお願いいたします。
- ※完成予想図はいずれも外構、植栽、外観等実際のものとは多少異なることがあります。
- ※CG合成の画像の場合、実際とは多少異なる場合があります。
周辺地図
周辺施設一覧
- ショッピングセンター
- スーパー
- コンビニ
- ドラッグストア
- ホームセンター
- 飲食店
- その他店舗
- 商店街
- 大学
- 専門学校
- 高校・高専
- 中学校
- 小学校
- 保育園
- 幼稚園
- 公民館・児童館
- 病院
- 郵便局
- 役所
- 図書館
- 金融機関
- 警察・消防
- 趣味・娯楽施設
- 公園・運動施設
- 周辺の街並み
- 駅
- その他
お問い合せ先
- 株式会社永和住宅 本店
- お電話でのお問い合わせは
043-460-3355「ホームページを見た」とお問い合わせください - 千葉県佐倉市西志津4-7-11
- 営業時間:AM9:30~PM7:00
- 定休日:第2・第3火曜日・毎週水曜日
- 免許番号:千葉県知事免許(4)第15117号
- トップページ
- 中古住宅をエリアから探す
- 佐倉市
- 中志津
- 佐倉市中志津5丁目の中古住宅


















